Small Campus
Type - industrial and cultural, heritage listed restoration
Location - Budapest
Role - project architect
Status - construction plan, 2022
The first phase of the revitalization project, known as the ‘Small Campus,’ serves as an introduction to the main program incorporating four listed industrial heritage buildings in the north-east corner of the site. The architectural concept, which required a careful approach to integrate the new design elements with historical buildings, involves adding metal-clad ‘ghost houses’ to the existing structures, creating a subtle shimmer within the post-industrial landscape.
The four small buildings are designated as follows:
Building #34 - The former garage workshop designed to accommodate the Café and a display area for smaller vehicles.
Building #51 - The weighing hall, which will be transformed into a spacious workshop for larger vehicles, intended for training and knowledge transfer of the former repair plant
Building #90 - This well-preserved Cold War shelter presented with minimal intervention, showcasing its historical significance.
Building #94 - The former warehouse will be repurposed to host cultural events, startup offices, and topical exhibitions.
Over the course of almost 3 years, my responsibilities included design coordination and facilitating communication between international and local designers and engineers. I also oversaw project scheduling, conducted presentations to clients and heritage authorities, and made significant contributions to drawing development, with a particular focus on interior design proposals ranging from the Schematic to Construction Design Phases.



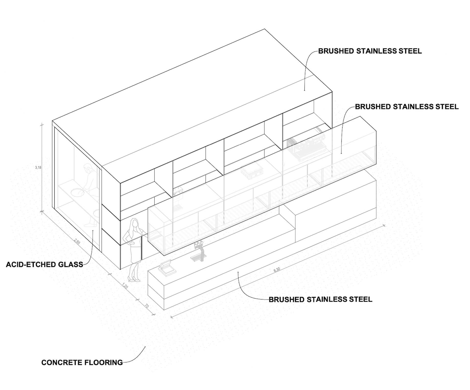
#34. Café Building
In line with the Small campus design, we emulated its subsequently built quality of the bar-restroom box by using metal finishes like those on the new annexes’ exterior.


The tallest podiums showcasing the vehicles feature glass-covered tunnel openings, providing a unique view of the vintage cars.
![]()
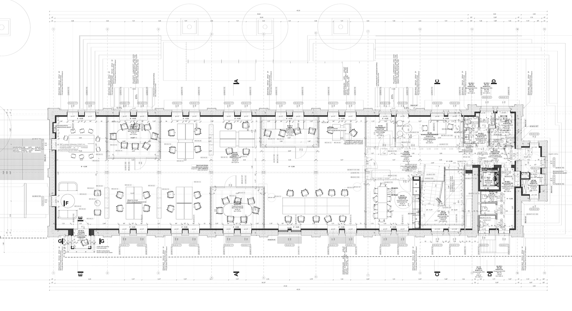
#94
Office/Temporary Exhibition Building
On the upper floor, our aim is to create a serene yet invigorating open office environment, using gentle shades for larger areas and introducing vibrant colours through furnishings. Enclosed silent and meeting rooms feature frosted glass and solid ceilings with acoustic treatment, suspended below wooden trusses.

#51
Vehicle Workshop
The most distinctive element of the interior, the meandering inspection pit, will be for the most part covered up due to the change of function. Therefore, we want to indicate the former pit outline by different floor colorings within the continuous epoxy surface. We believe that simple and pragmatic furnishings are appropriate for both the smaller restoration workshops and the assembly hall. In terms of interior design, we strive for the material choices and colouring that refer to the current state of the building, such as the assembly pit and industrial gate - the walls are light, the ceiling is given a dark shade.
Restoration workshop
Preserved industrial gate to the west

A time-capsule to discover#90
Cold war shelter
As the shelter remained mostly intact, the general approach was to conserve the interior in its original state as faithfully as possible. In contrast, the new additional elements such as items of wayfinding, built-in cabinet, toilet facilities can be conceived to evoke a completely different era. The concept of ‘monolith’ entails the striking contrast we are seeking by decontextualizing an object from various layers of time. We propose to follow the strategy of creating a distant relationship between the found architectural object and the new interventions throughout the museum site.

