B11
Type - interior design, apartment revamp
Location - 7th district Budapest (H)
Status - finalised, 2021
Role - director LPH 1-9
Photo - Norbert Juhasz
Bedroom furnishing with open
and floating custom design ︎︎︎

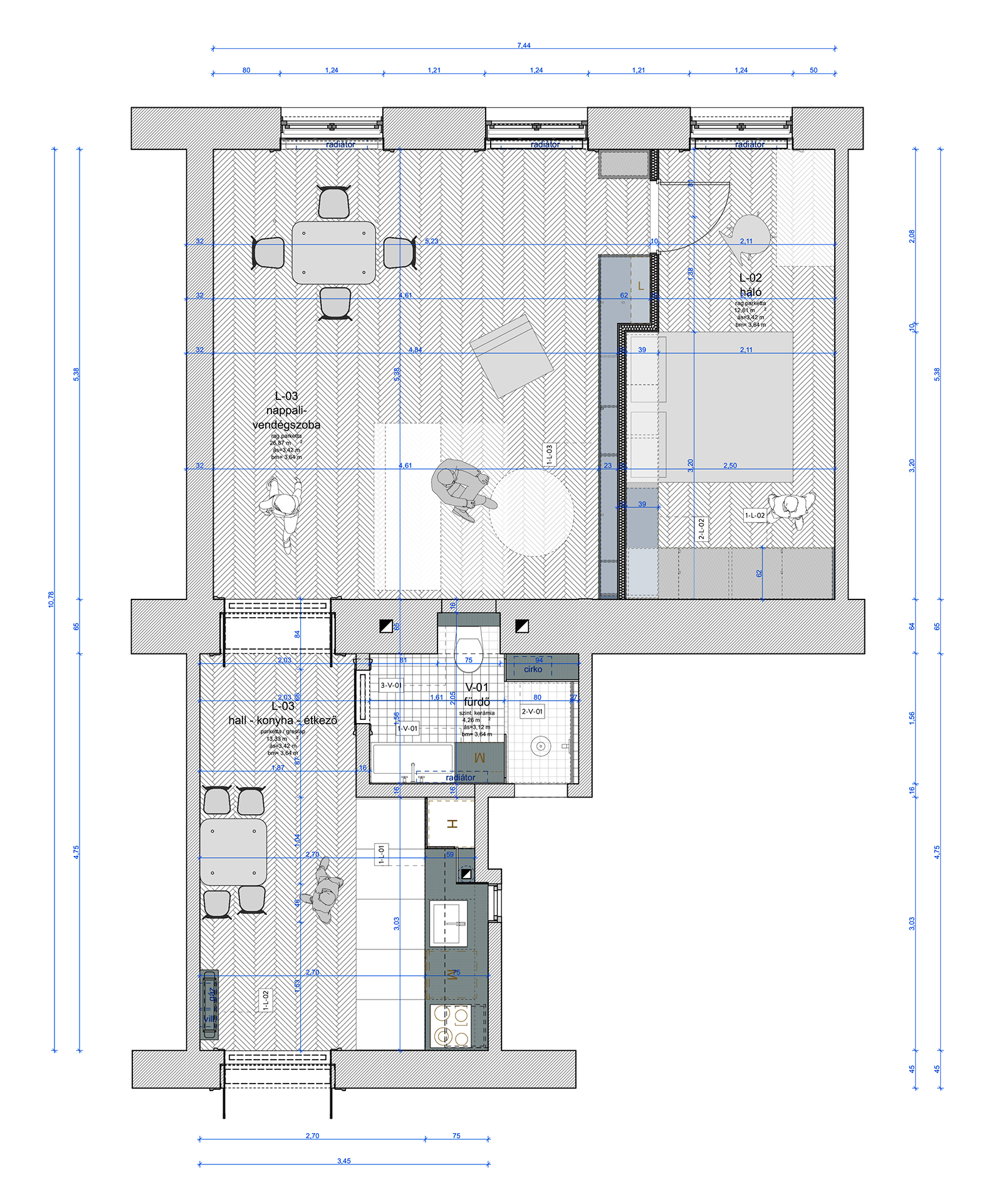
In spring 2019, I commenced working on the refurbishment of an apartment located in a turn-of-the-century building at the heart of Budapest's city centre. Working with a simple objective, to transform the fragmented rooms into an elegant, free-flow layout, allowed me to experiment with the interplay of the old and the new. I kept wooden doors and parts of the floor from the original layout, combining them with a new, simple arrangement that works in accordance with the traditional split into the day and the night zones.
The concept behind the materiality aimed to respond to the spatial choreography and arrival experience, progressively transitioning from a subdued entrance area including a kitchen set-back with darker tones to the luminous living room. The unifying gesture of the oak parquet with its longitudinal grain provides continuity to the dining space entry hall and the living room.


︎︎︎Contrasting colour palettes to showcase radical interventions of the adjacent kitchen unit and bathroom cladding